Maklerangebot-Nr.:
2009/Ge/101
Bebautes Gewerbegrundstück
Amtsmühlenweg
93
39261 Zerbst / Anhalt
|
|
| Lage:

|
Die
Stadt Zerbst / Anhalt hat 15.423 Einwohner (Stichtag: 30.06.2007).
Sie liegt im östlichen Teil des Bundeslandes Sachsen/Anhalt,
Landkreis Anhalt-Bitterfeld. Zerbst / Anhalt hat überregionale
Bahnverbindungen u.a. Richtung Magdeburg, Halle/Leipzig und Lutherstadt
Wittenberg.
Das
Gewerbegrundstück befindet sich westlich des Stadtzentrums von Zerbst, in
einem
überwiegend
mit Einfamilienhäusern bebautem Gebiet. Das
bebaute Gewerbegrundstück ist überwiegend mit in eingeschossigen
Bauweise errichteten Einfamilienhäuser umschlossen. Westlich schließt
eine intakte Kleingartenanlage an. Das Grundstück grenzt nördlich an den
Amtsmühlenweg und östlich „An der Hainichte“ an. Ein Gutachten liegt
vor.
|
| Infrastruktur: |
Laut
Gesetz über den Landesentwicklungsplan des Landes Sachsen-Anhalt wurde
die
Stadt
Zerbst / Anhalt als ein Mittelzentrum eingestuft. Mittelzentren
sind als Standorte für gehobene Einrichtungen im wirtschaftlichen,
sozialen, kulturellen und im politischem Bereich und weitere private
Dienstleistungen zu sichern und zu entwickeln.
Zerbst
/ Anhalt ist dabei sowohl wirtschaftliches als auch kulturelles und
historisches Zentrum des Landkreises Anhalt-Bitterfeld östlich der Elbe.
|
| Erschließung: |
ortsüblich
erschlossen (Leitungen im Straßenraum)
Anschlüsse
an die Strom- und Wasserversorgung, sowie Telefon, Gas und Abwasser sind
vorhanden Verkehrstechnisch ist das Gewerbegrundstück durch zwei innerörtliche Durchgangsstraßen
mit Straßenbeleuchtung und Straßenentwässerung erschlossen.
Die Erschließung wurde 2006/2007 erneuert.
|
Nutzung
und Bebauung:
|

|
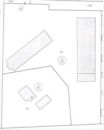
Das
Gewerbegrundstück ist etwas zurückgesetzt mit einem Verwaltungsgebäude
und einem Lagergebäude bebaut. Beide sind mit einer Überdachung
verbunden. Der rückwärtige Bereich des Grundsstücks ist mit einer
Halle (Garage, Werkstatt und Waschhalle) und einem Baracken- gebäude
bebaut. Die Freiflächen werden tlw. als Lager- und Abstellfläche
und tlw. als Grünfläche genutzt. Das gesamte Grundstück ist umzäunt |
 |
|
| Grundstück: |
Das
Grundstück hat annähernd die Form eines Quadrates.
Es handelt sich um ein Eckgrundstück mit einer Größe von 12.403 m².
|
| Altlasten: |
Laut
Wertgutachten liegen kein erkennbarer Altlastenverdacht vor. Das Gutachten
geht von kontaminierungsfreiem Grund und Boden aus |
| Planungsrechtlich
zulässige Nutzung: |
Laut
Flächennutzungsplan ist das Gebiet als Mischgebiet ausgewiesen.
Weitere
Planungsabsichten der Stadt sind nicht bekannt. Unter
der Voraussetzung, dass die planungsrechtlichen Gegebenheiten vorhanden sind, wäre die
Grundstücksfläche als wartebeständiges Bauland (Wohnen) zu
bewerten.
|
|
Verwaltungsgebäude:
|
Massivgebäude,
tlw. Fachwerk, Ziegelmauerwerk
freistehend,
eingeschossig mit ausgebautem Dachgeschoß, unterkellert, kleines Lagergebäude
mit Überdachung angebaut.
Baujahr ca. 1900, Modernisierung 1994
(Fenster,
Eingang, Decke abgehängt im EG, Maler u. Putzarbeiten)
Bruttogeschoßfläche (BGF): 443 m²,
Nutzfläche:
EG: 122 m²
(5 Büroräume, 1 Aufenthaltsraum. Doppel-WC, Flur)
DG: 84 m² (4 Büroräume, 1 Lagerraum, WC)
Keller: Abstellräume
Weitere
Angaben im Wertgutachten vom 05.01.2008
|
|
|
| Nebengebäude: |
einfach,
teilweise sind Instandsetzungsarbeiten erforderlich
Keines Lagergebäude:
Massivbau, 1994 Dach, Fassade erneuert,
einfachster Zustand,
Große
Halle:
Baujahr 1991, eingebaut sind LKW-Garage, Werkstatt, Waschhalle, LKW-Garage:Massivbau,
Metallkonstruktion mit Trapezblecheindeckung, Stahlfalltore,
Betonfußboden,
Werkstatt:
Massivbau, Dach: Stahlbetonkassetten mit Pappeindeckung,
Stahlfalltore, Betonfußboden, Montagegruben
Waschhalle:
Massivbau, Dach:
Stahlbetonkassetten mit Pappeindeckung,
PVC-Thermofenster (verschlissen), Gasheizung und Warmwasser,
Deckensektionaltor, massive Putz- und Wasserschäden
Baracke:
westlicher Teil massiv mit Sanitäranlagen und Gasheizung, (1994 neu),
(Sanitär verschlissen), übriges Gebäude Holzständerwerk mit
Asbestverkleidung,
Die Baracke ist nach
Auffassung des Gutachterausschusses nicht mehr wirtschaftlich verwertbar.
|
| Außenanlagen: |
überwiegend
Stahldrahtzaun mit Tor (Funköffnung), Hofbefestigung: Beton, Ziegel,
Asbest (überwiegend verschlissen), Ölabscheider (erneuert 2007) |
| Grundstücksgröße: |
12.403
m² |
| Vermietung: |
NKM:
986,50 €
kurzfristig
bis voraussichtlich 12/2010 |
| Kaufpreis: |
VB
250.000,- € (Wertgutachten liegt vor) |
| Provision |
7,14 %
des Kaufpreises inkl. gesetzl. MwSt., zahlbar, fällig und verdient bei Unterzeichnung eines
notariellen Kaufvertrages |
| Kontakt/Exposéanforderung: |
BWF GmbH, Tel:(030) 296 49 90 Mo-Fr 10-18 Uhr
bwf@immobilie.net
|